iPanel-IDC(列頭柜)
iPanel-IDC(列頭柜)是一個聚集了大量服務器、存儲設備、網絡設備及配套UPS、精密空調等設備的IT設備場所,是實現數據信息的集中處理、存儲、傳輸、
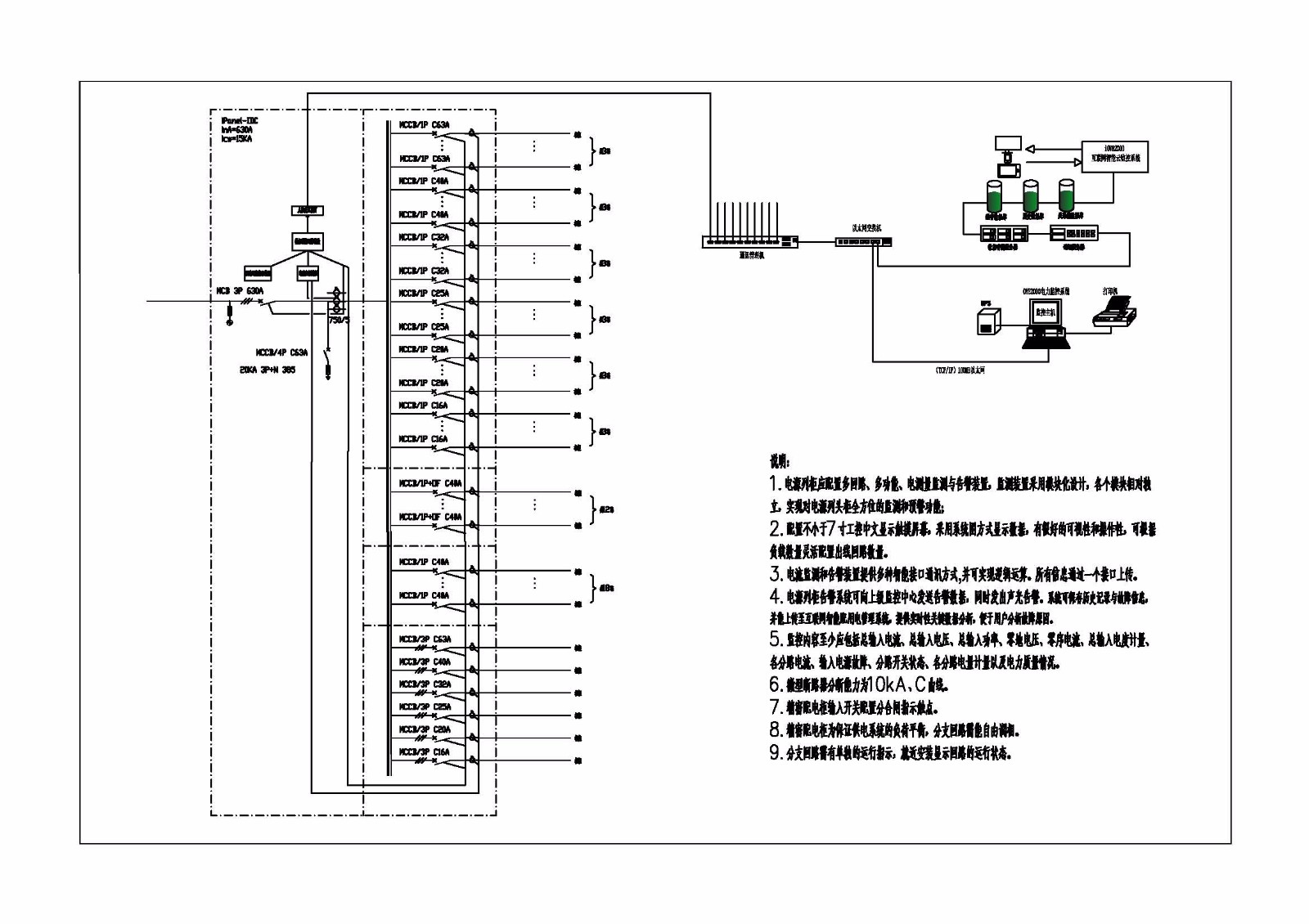
交換和集中管理等業務的服務平臺。數據中心精密配電系統為機房內所有的IT設備提供穩定、可靠的動力電源支持。
功能特性:
1. 優雅的外觀及先進的加工工藝
2. 安全可靠的結構
各功能單元安全防護隔離設計、增加對人身意外觸電的防護。
出線單元用戶接線端子設計,方便使用并保證操作安全。
控制單元強弱電分離
3. 級聯式模塊化設計
采用級聯式模塊化功能單元設計,只需將模塊拼裝好幾顆輕松在線擴容,保證了供電的連續性。
4. 先進的獨立母排系統
數據中心精密配電具有單項供電的特征。可實現在線調相,將負荷進行合理分配,保證三相平衡。獨立的母排系統設計,熱插拔技術為配電系統帶來了更高的安
全性及靈活性。采用通用型母排配適器,抑郁拆除和裝配,系統調整更快捷。

5. 列頭柜集成了自主研發的數據采集、運算、分析、預警模塊和互聯網智能管理系統平臺,實現了智能監測、智能顯示、智能預警、智能控制的精密管理。



